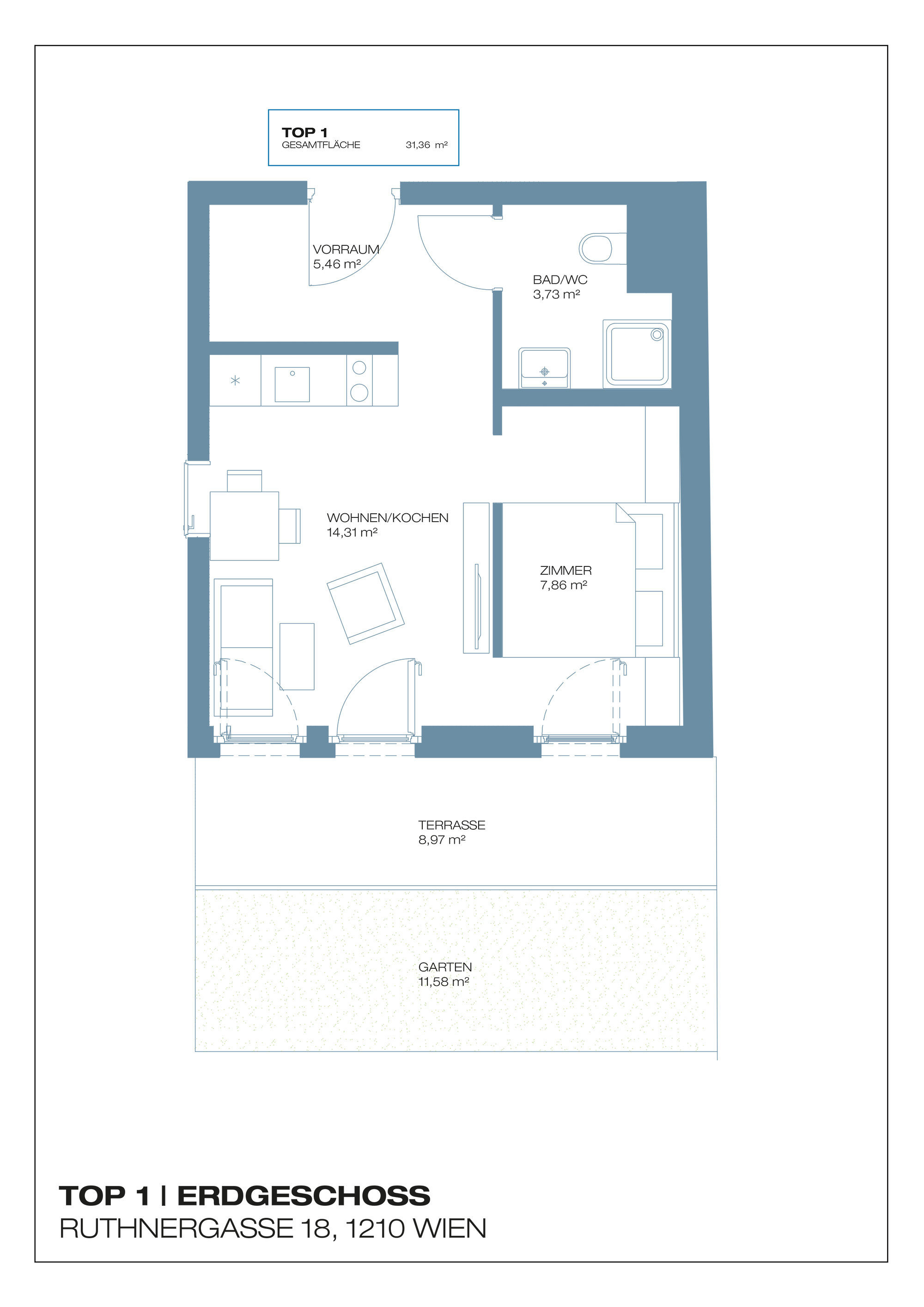
Top 1
Garten, Ruhe und ein gemütliches Zuhause
Freuen Sie sich auf Ihr neues Zuhause mit eigenem Garten! Diese praktisch aufgeteilte 2-Zimmer-Wohnung bietet Ihnen einen gemütlichen Rückzugsort im Erdgeschoss. Dank der kompletten Möblierung können Sie hier unkompliziert einziehen und Ihre freie Zeit auf der eigenen Terrasse im Grünen genießen.




Fordern Sie
jetzt Ihr Exposé an
Im Exposé erhalten Sie alle wichtigen Informationen zu Ihrer neuen Wohnmöglichkeit. Auf Wunsch vereinbaren wir gerne ein persönliches Beratungsgespräch, um Ihre individuellen Fragen zu klären.





