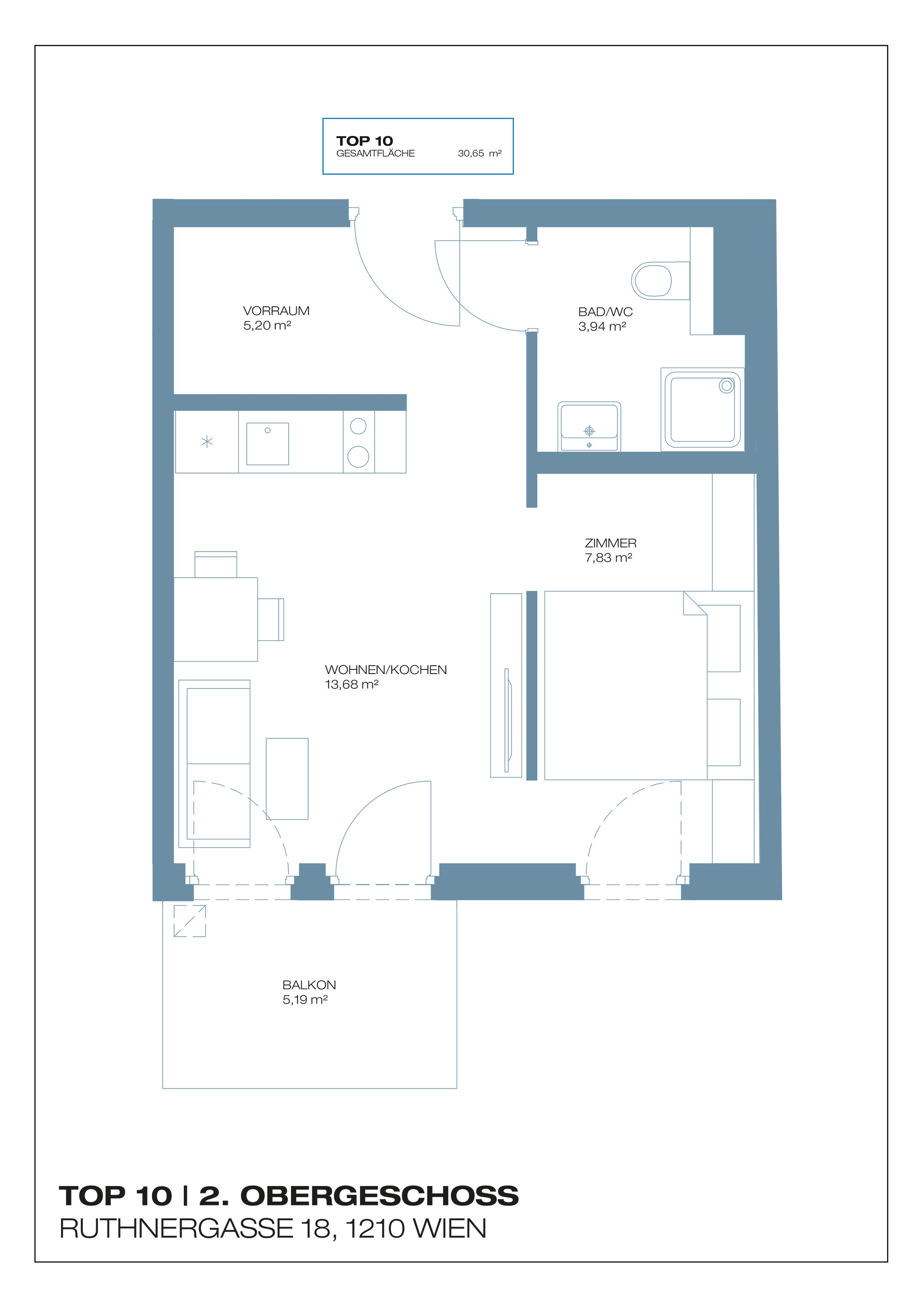
Top 10
Wohnen mit Ausblick
Ein helles 2-Zimmer-Zuhause mit einladendem Balkon im zweiten Obergeschoss. Die kluge Raumnutzung bietet Platz für individuelles Wohnen und schafft eine behagliche Atmosphäre.




Fordern Sie
jetzt Ihr Exposé an
Im Exposé erhalten Sie alle wichtigen Informationen zu Ihrer neuen Wohnmöglichkeit. Auf Wunsch vereinbaren wir gerne ein persönliches Beratungsgespräch, um Ihre individuellen Fragen zu klären.





