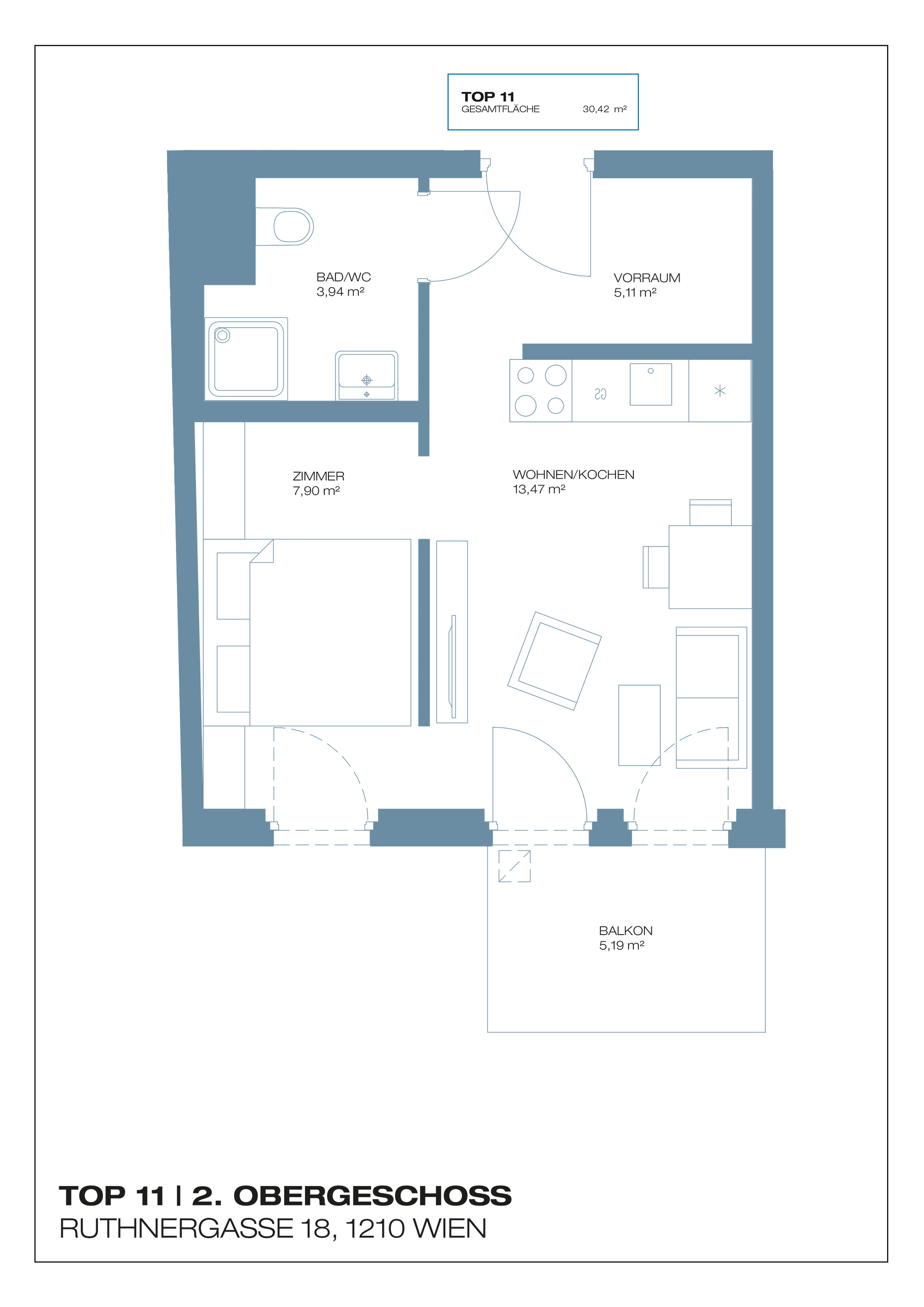
Top 11
Ruhige Balkonidylle
Genießen Sie entspannte Stunden auf Ihrem privaten Balkon. Diese Wohnung überzeugt durch ihre hochwertige Ausstattung und die freundliche Belichtung im zweiten Obergeschoss.




Fordern Sie
jetzt Ihr Exposé an
Im Exposé erhalten Sie alle wichtigen Informationen zu Ihrer neuen Wohnmöglichkeit. Auf Wunsch vereinbaren wir gerne ein persönliches Beratungsgespräch, um Ihre individuellen Fragen zu klären.





