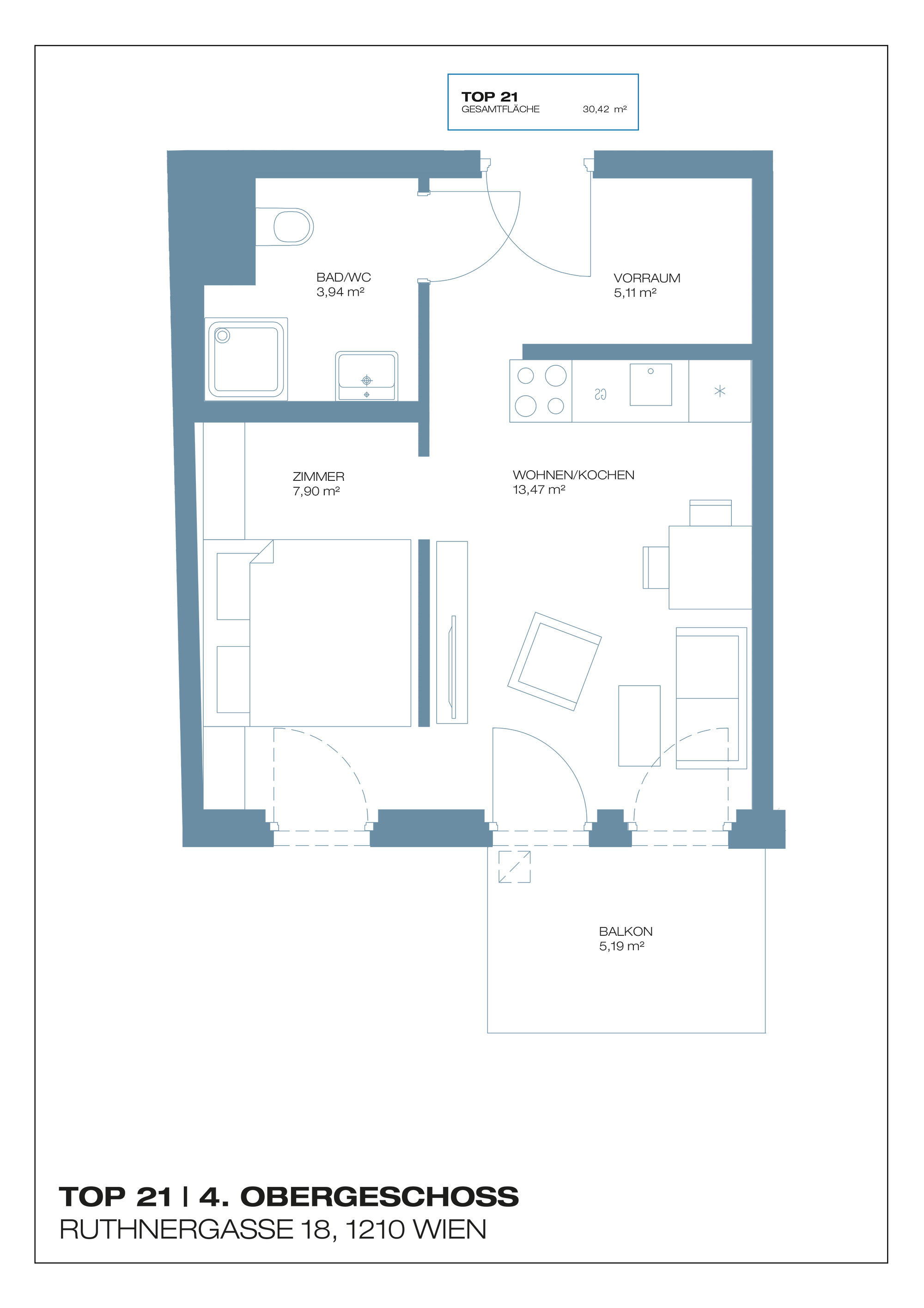
Top 21
Sonniges Wohnglück
Lichtdurchflutete Zimmer und ein schöner Balkon zeichnen diese 2-Zimmer-Wohnung im vierten Obergeschoss aus. Die erstklassige Bauqualität verspricht ein sorgenfreies Wohnerlebnis.




Fordern Sie
jetzt Ihr Exposé an
Im Exposé erhalten Sie alle wichtigen Informationen zu Ihrer neuen Wohnmöglichkeit. Auf Wunsch vereinbaren wir gerne ein persönliches Beratungsgespräch, um Ihre individuellen Fragen zu klären.





