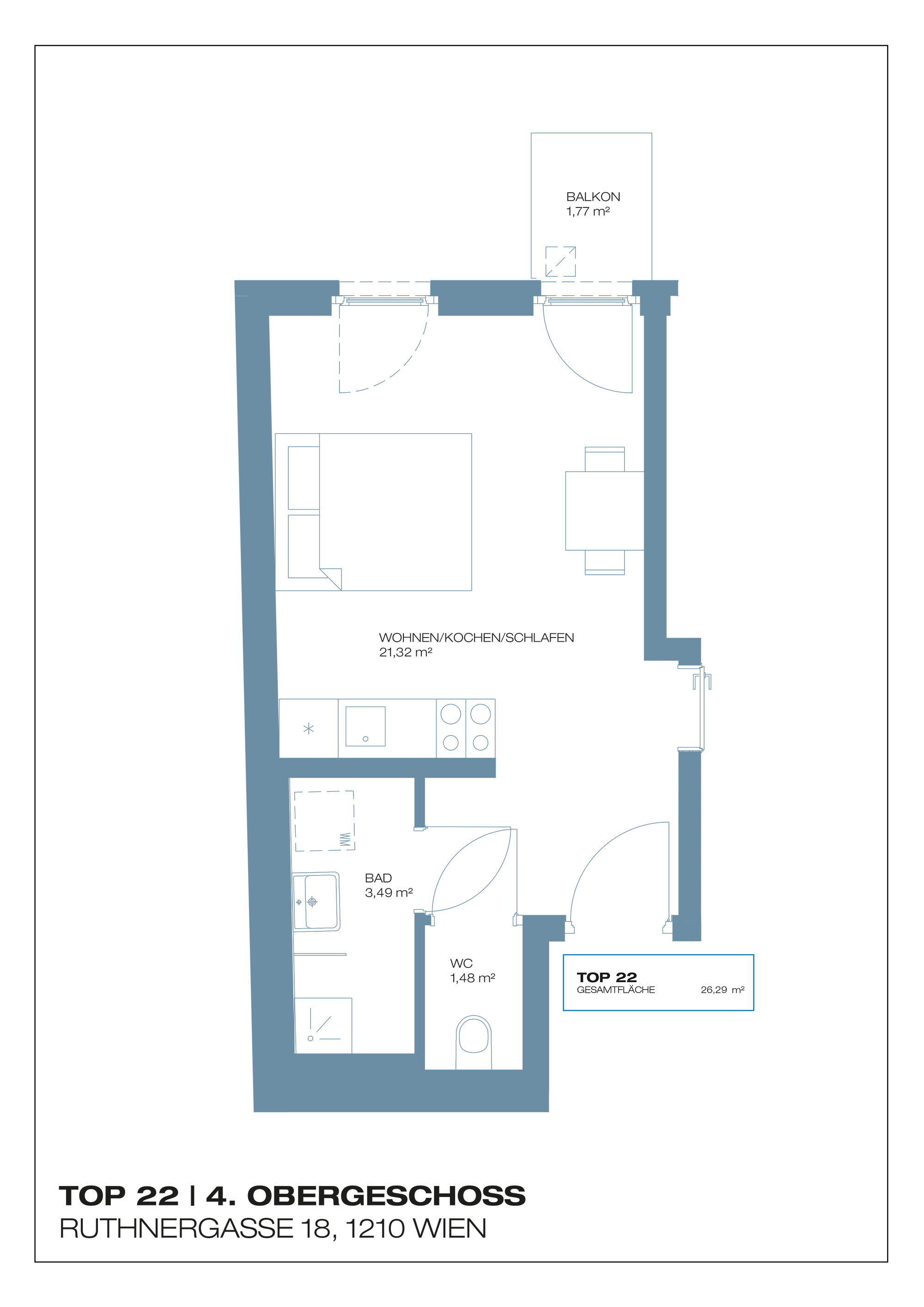
Top 22
Kompakter Charme
Eine charmante Balkonwohnung im vierten Obergeschoss. Die optimale Raumnutzung bietet den idealen Rahmen für modernes Leben mit privatem Freiraum.




Fordern Sie
jetzt Ihr Exposé an
Im Exposé erhalten Sie alle wichtigen Informationen zu Ihrer neuen Wohnmöglichkeit. Auf Wunsch vereinbaren wir gerne ein persönliches Beratungsgespräch, um Ihre individuellen Fragen zu klären.





