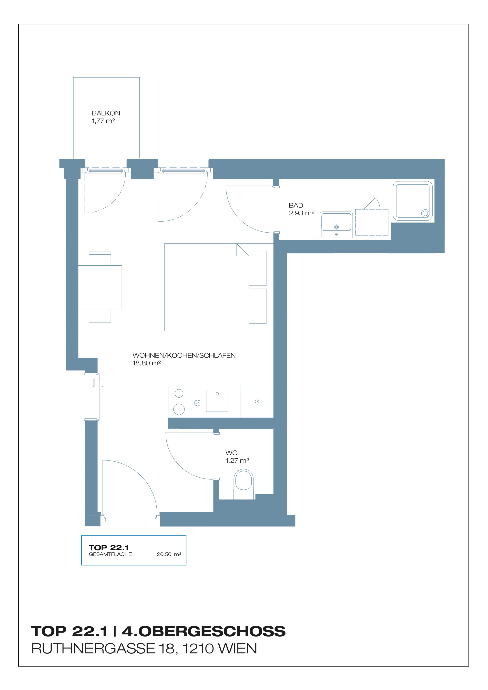
Top 22.1
Wohnen mit Aussicht
Kompaktes Apartment mit Balkon in der vierten Etage. Diese Wohnung bietet eine tolle Atmosphäre und moderne Ausstattung für Individualisten.




Fordern Sie
jetzt Ihr Exposé an
Im Exposé erhalten Sie alle wichtigen Informationen zu Ihrer neuen Wohnmöglichkeit. Auf Wunsch vereinbaren wir gerne ein persönliches Beratungsgespräch, um Ihre individuellen Fragen zu klären.





