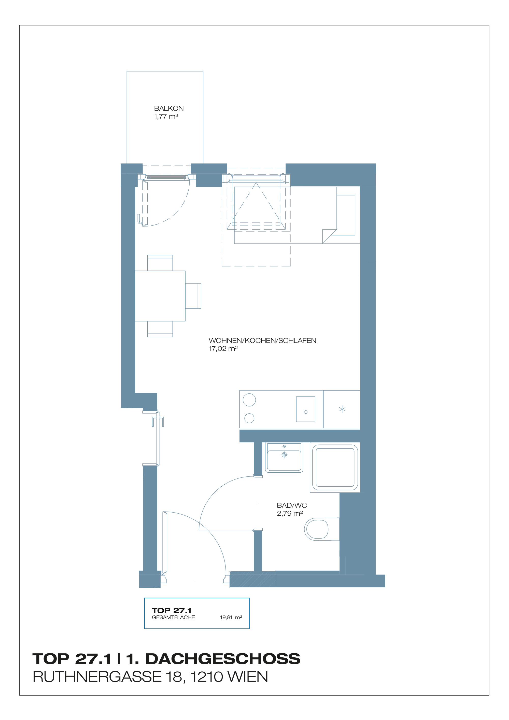
Top 27.1
Dachgeschoss idyll
Genießen Sie die Stille unter dem Dach. Die charmanten Gegebenheiten der Etage verleihen den Räumen eine ganz besondere und behagliche Note für entspanntes Wohnen.




Fordern Sie
jetzt Ihr Exposé an
Im Exposé erhalten Sie alle wichtigen Informationen zu Ihrer neuen Wohnmöglichkeit. Auf Wunsch vereinbaren wir gerne ein persönliches Beratungsgespräch, um Ihre individuellen Fragen zu klären.





