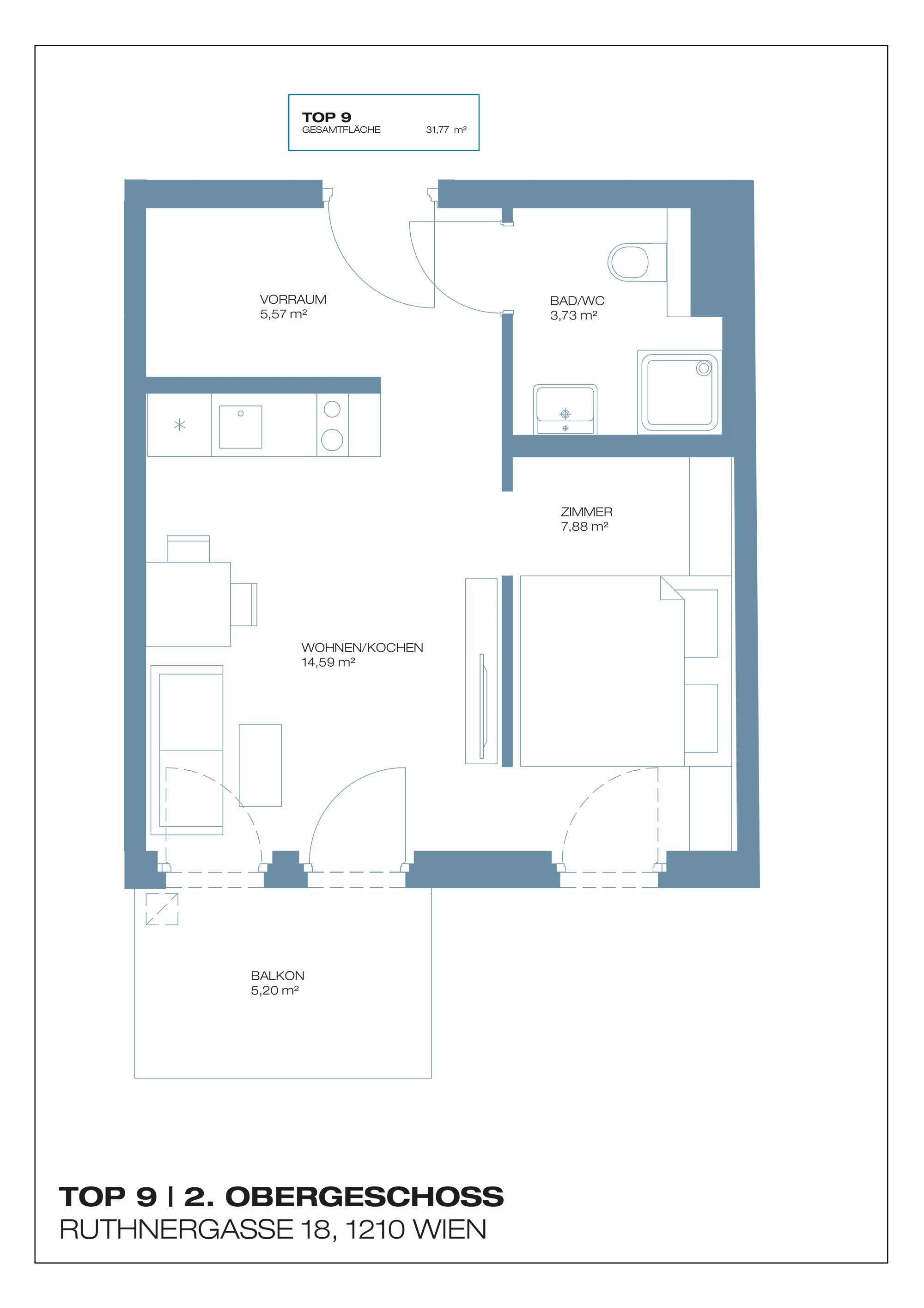
Top 9
Eleganter Rückzugsort
Wohlfühlen pur verspricht dieses 2-Zimmer-Apartment mit sonnigem Balkon im zweiten Obergeschoss. Die ruhige Lage und der durchdachte Grundriss garantieren höchste Lebensqualität.




Fordern Sie
jetzt Ihr Exposé an
Im Exposé erhalten Sie alle wichtigen Informationen zu Ihrer neuen Wohnmöglichkeit. Auf Wunsch vereinbaren wir gerne ein persönliches Beratungsgespräch, um Ihre individuellen Fragen zu klären.





